Bilocale in vendita

Cropani, Via algeri - Cropani Marina
€ 30.000
2 locali 2 locali
52 Mq 52 Mq
1 bagno 1 bagno

Bilocale in vendita

Cropani, Via algeri - Cropani Marina

Descrizione annuncio

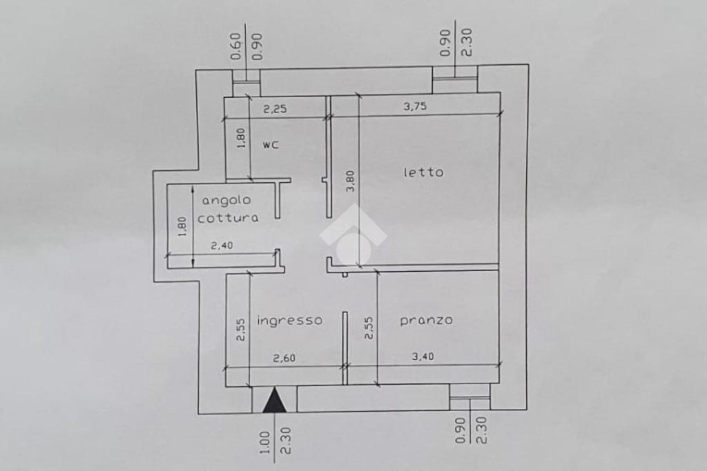
Nel cuore di Cropani Marina, proponiamo in vendita un accogliente appartamento di 52 mq situato al piano terra.

Questa proprietà, offre una disposizione funzionale con due locali ben distribuiti. L'appartamento comprende una spaziosa camera da letto, un bagno e un ulteriore ambiente che può essere utilizzato come soggiorno o studio, a seconda delle esigenze.

La posizione strategica permette di godere della tranquillità della zona, pur essendo a breve distanza dalle principali attrazioni e servizi locali.

Ideale per chi cerca una soluzione abitativa pratica e confortevole, questa proprietà rappresenta un'opportunità interessante per chi desidera vivere vicino al mare, in un contesto sereno e ben collegato

Mostra tutto

Nelle vicinanze

Trasporto pubblico Trasporto pubblico
Cropani
Cropani
360 m
Supermercati Supermercati
MD
1,0 Km
Conad
1,2 Km
EuroSpin
1,9 Km
Bar Bar
Bar
160 m
Mostra tutto

Caratteristiche

Rif.:
61152250
Piano:
1 di 2 (Piano terra)
Camere da letto:
1
Arredamento:
Assente
Condizionamento:
Assente
Ascensore:
No
Mostra tutto
Prezzo Prezzo
€ 30.000
Rata mutuo Rata mutuo
€ 140 / mese
Spese annue Spese annue
€ 0
Proponi il tuo prezzoProponi il tuo prezzo
Immobile valutato con T·Valuta

Classe Energetica

G
G
G
G
G
G
G
G
G
EP invernale del fabbricato:
EP estiva del fabbricato:
Anno di costruzione:
1960
Riscaldamento:
Assente

Ti interessa visionare l'immobile?

Fissa un appuntamento  Fissa un appuntamento

Richiedi informazioni

Clicca su Leggi per aprire l'informativa
* Questi campi sono obbligatori

Calcola il tuo mutuo

Semplice e senza impegno
Anticipo

( % )
Mutuo

( % )

pochi semplici passi

inserisci i tuoi dati
Questionario completato
Grazie per aver richiesto un appuntamento senza impegno con un nostro Consulente del Credito e Assicurativo.

Hai inserito correttamente tutti i dati necessari e a breve riceverai una e-mail con un link da convalidare per inviare i tuoi dati.
Affiliato
Immobiliare Botricello D.I.
Via Venezia, 1 88070 Botricello (CZ)

Il nostro staff


  • Domenico Puccio
    Affiliato

  • Francesca Federico
    Coordinatrice

  • Francesco Greco
    Responsabile

  • Francesca Puccio
    Collaboratrice

  • Santino Stirparo
    Collaboratore
Via Venezia, 1 88070 Botricello (CZ)
Zona: Simeri Mare - Sellia Marina - Cropani - Botricello - Steccato
Mostra su mappa
Orari: da lunedì a sabato dalle ore 09.00 alle ore 19.00 ; domenica e festivi su appuntamento.
Affiliato
Immobiliare Botricello D.I.
Via Venezia, 1 88070 Botricello (CZ)

2026 Tecnocasa Franchising S.p.A. - P. IVA 08365160152 - Via Monte Bianco 60/A 20089 Rozzano (MI). Ogni agenzia ha un proprio titolare ed è autonoma. Privacy policy | Policy utilizzo | Cookie policy