Porzione di bifamiliare in vendita

Botricello, Via Argentario
€ 210.000
6 locali 6 locali
150 Mq 150 Mq
2 bagni 2 bagni

Porzione di bifamiliare in vendita

Botricello, Via Argentario

Descrizione annuncio

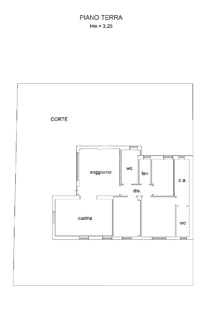
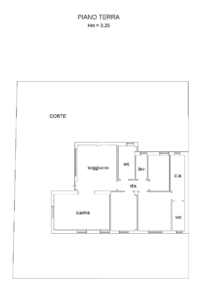
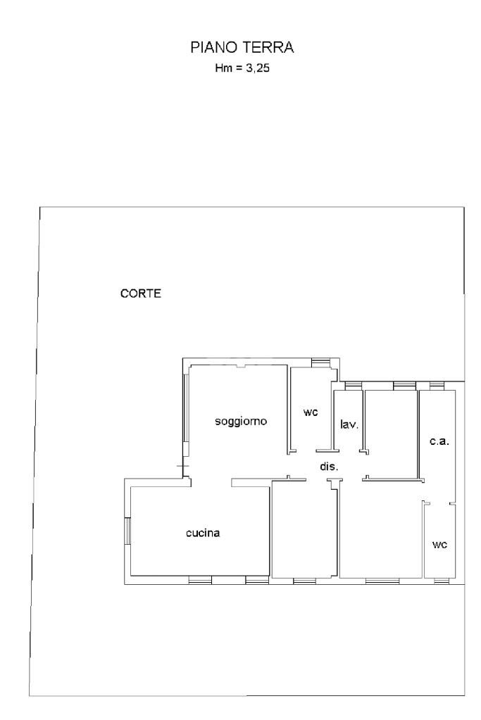
Nel comune di Botricello, a pochi passi dal mare, proponiamo una villetta bifamiliare situata al piano terra con corte esterna.

L’ingresso si apre su un ampio soggiorno luminoso grazie alle grandi vetrate, in continuità con la cucina open space dotata di comodo ripostiglio e accesso diretto all’esterno.

La zona notte comprende tre camere, di cui una matrimoniale con cabina armadio e bagno privato, oltre a bagno padronale e pratica zona lavanderia. All’esterno sono presenti una zona di accumulo, un ulteriore bagno con doccia e un deposito.

L’immobile di recente costruzione, è dotato di riscaldamento a pavimento, climatizzatori e pannelli solari ed è stato oggetto di ristrutturazione nel 2024 con ecobonus 110 %, garantendo così un ambiente moderno e funzionale.

Mostra tutto

Nelle vicinanze

Trasporto pubblico Trasporto pubblico
Botricello
Botricello
920 m
Supermercati Supermercati
Crai Extra
1,1 Km
Eurospar
1,2 Km
MD
1,4 Km
Negozi Negozi
Prodotti Di Calabria
1,2 Km
Negozi
1,3 Km
Bar Bar
Bar
560 m
Aiello
1,2 Km
Ristoranti Ristoranti
Ristoranti
650 m
Mostra tutto

Caratteristiche

Rif.:
61136851
Piano:
Terra di 1
Totale piani:
1
Posti auto:
2
Camere da letto:
2
Arredamento:
Assente
Mostra tutto
Prezzo Prezzo
€ 210.000
Rata mutuo Rata mutuo
€ 981 / mese
Spese annue Spese annue
€ 0
Proponi il tuo prezzoProponi il tuo prezzo
Immobile valutato con T·Valuta

Classe Energetica

A4
A4
A4
A4
A4
A4
A4
A4
A4
EP globale non rinnovabile:
22.42 kW h/m² anno
EP globale rinnovabile:
81.56 kW h/m² anno
EP invernale del fabbricato:
EP estiva del fabbricato:
Anno di costruzione:
2010
Riscaldamento:
Autonomo
Tipo impianto:
A pavimento
Tipo alimentazione:
Pannelli

Ti interessa visionare l'immobile?

Fissa un appuntamento  Fissa un appuntamento

Richiedi informazioni

Clicca su Leggi per aprire l'informativa
* Questi campi sono obbligatori

Calcola il tuo mutuo

Semplice e senza impegno
Anticipo

( % )
Mutuo

( % )

pochi semplici passi

inserisci i tuoi dati
Questionario completato
Grazie per aver richiesto un appuntamento senza impegno con un nostro Consulente del Credito e Assicurativo.

Hai inserito correttamente tutti i dati necessari e a breve riceverai una e-mail con un link da convalidare per inviare i tuoi dati.
Affiliato
Immobiliare Botricello D.I.
Via Venezia, 1 88070 Botricello (CZ)

Il nostro staff


  • Domenico Puccio
    Affiliato

  • Francesca Federico
    Coordinatrice

  • Francesco Greco
    Responsabile

  • Francesca Puccio
    Collaboratrice

  • Santino Stirparo
    Collaboratore
Via Venezia, 1 88070 Botricello (CZ)
Zona: Simeri Mare - Sellia Marina - Cropani - Botricello - Steccato
Mostra su mappa
Orari: da lunedì a sabato dalle ore 09.00 alle ore 19.00 ; domenica e festivi su appuntamento.
Affiliato
Immobiliare Botricello D.I.
Via Venezia, 1 88070 Botricello (CZ)

2026 Tecnocasa Franchising S.p.A. - P. IVA 08365160152 - Via Monte Bianco 60/A 20089 Rozzano (MI). Ogni agenzia ha un proprio titolare ed è autonoma. Privacy policy | Policy utilizzo | Cookie policy