Casa semindipendente in vendita

Botricello, Via de Riso
€ 115.000
3 locali 3 locali
103 Mq 103 Mq
1 bagno 1 bagno

Casa semindipendente in vendita

Botricello, Via de Riso

Descrizione annuncio

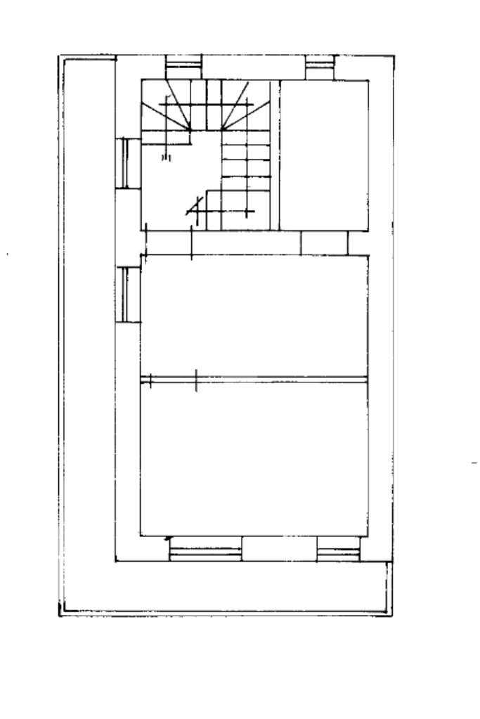
Nella Piazza Stazione, nel cuore del Paese, proponiamo in vendita un fabbricato cielo–terra su più livelli.

Al piano terra, compreso nella vendita, è presente un locale commerciale categoria C/1 di circa 50 mq, ideale da mettere a reddito oppure da utilizzare come attività principale.

Al primo piano un appartamento di piccola metratura, composto da un luminoso soggiorno con cucina abitabile, una camera da letto e un bagno, attualmente già locato. L’immobile è dotato di aria condizionata, garantendo comfort in ogni stagione.

Al secondo piano troviamo una terrazza verandata, rifinita con pavimentazione in gres, oltre a un locale deposito.

Soluzione ottima sia per investimento, grazie alla possibilità di ottenere due canoni di locazione distinti (residenziale e commerciale) con un’unica proprietà, sia per chi desidera un'abitazione principale di dimensioni contenute, con la comodità di un locale commerciale annesso.

Mostra tutto

Nelle vicinanze

Trasporto pubblico Trasporto pubblico
Botricello
Botricello
80 m
Supermercati Supermercati
Crai Extra
220 m
Eurospar
1,2 Km
MD
1,4 Km
Negozi Negozi
Prodotti Di Calabria
1,1 Km
Negozi
1,5 Km
Bar Bar
Aiello
460 m
Bar
1,5 Km
Ristoranti Ristoranti
Ristoranti
1,1 Km
Mostra tutto

Caratteristiche

Rif.:
61159525
Piano:
1 di 2 (Piano su più livelli)
Balconi:
1
Terrazzi:
1
Camere da letto:
1
Condizionamento:
Autonomo
Mostra tutto
Prezzo Prezzo
€ 115.000
Rata mutuo Rata mutuo
€ 537 / mese
Spese annue Spese annue
€ 0
Proponi il tuo prezzoProponi il tuo prezzo

Classe Energetica

F
F
F
F
F
F
F
F
F
EP invernale del fabbricato:
EP estiva del fabbricato:
Anno di costruzione:
1967
Riscaldamento:
Autonomo
Tipo impianto:
Ad aria
Tipo alimentazione:
Metano

Ti interessa visionare l'immobile?

Fissa un appuntamento  Fissa un appuntamento

Richiedi informazioni

Clicca su Leggi per aprire l'informativa
* Questi campi sono obbligatori

Calcola il tuo mutuo

Semplice e senza impegno
Anticipo

( % )
Mutuo

( % )

pochi semplici passi

inserisci i tuoi dati
Questionario completato
Grazie per aver richiesto un appuntamento senza impegno con un nostro Consulente del Credito e Assicurativo.

Hai inserito correttamente tutti i dati necessari e a breve riceverai una e-mail con un link da convalidare per inviare i tuoi dati.
Affiliato
Immobiliare Botricello D.I.
Via Venezia, 1 88070 Botricello (CZ)

Il nostro staff


  • Domenico Puccio
    Affiliato

  • Francesca Federico
    Coordinatrice

  • Francesco Greco
    Responsabile

  • Francesca Puccio
    Collaboratrice

  • Santino Stirparo
    Collaboratore
Via Venezia, 1 88070 Botricello (CZ)
Zona: Simeri Mare - Sellia Marina - Cropani - Botricello - Steccato
Mostra su mappa
Orari: da lunedì a sabato dalle ore 09.00 alle ore 19.00 ; domenica e festivi su appuntamento.
Affiliato
Immobiliare Botricello D.I.
Via Venezia, 1 88070 Botricello (CZ)

2026 Tecnocasa Franchising S.p.A. - P. IVA 08365160152 - Via Monte Bianco 60/A 20089 Rozzano (MI). Ogni agenzia ha un proprio titolare ed è autonoma. Privacy policy | Policy utilizzo | Cookie policy