5 locali in vendita

Botricello, Via torquato tasso
€ 78.000
5 locali 5 locali
119 Mq 119 Mq
1 bagno 1 bagno

5 locali in vendita

Botricello, Via torquato tasso

Descrizione annuncio

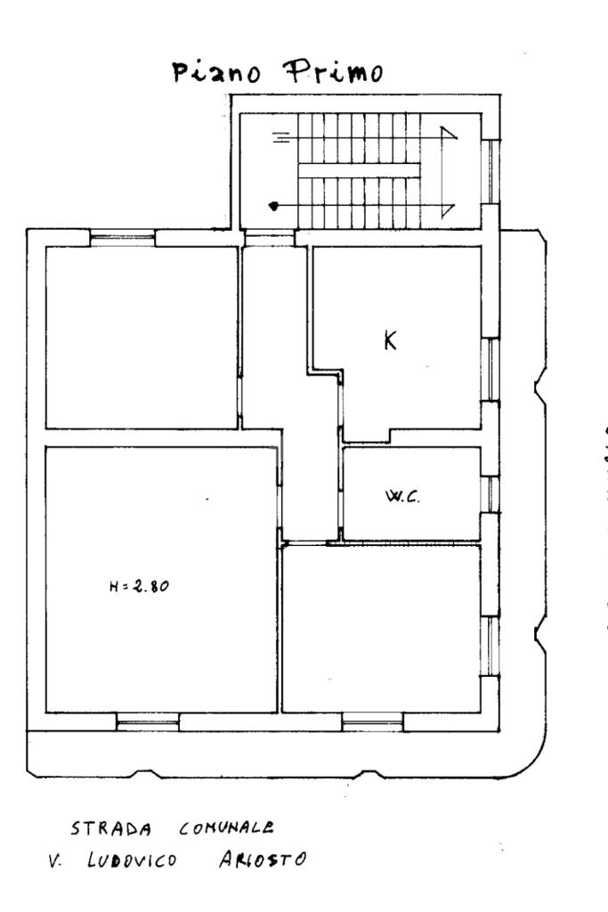
Appartamento in centro paese.

Vicino ai servizi essenziali e nei pressi della strada principale, abitazione di 120 mq situata al primo piano di un edificio residenziale.

Questa proprietà offre cinque locali ben distribuiti, ideali per chi cerca spazio e funzionalità.

L'appartamento comprende tre camere da letto, perfette per una famiglia o per chi desidera avere uno studio o una stanza per gli ospiti.

Il soggiorno è luminoso e accogliente, la cucina è separata, garantendo praticità e comfort nella vita quotidiana, con accesso diretto a un balcone che offre una piacevole vista sui dintorni.Il bagno è spazioso e ben tenuto.

L'immobile è dotato di aria condizionata oltre stufa a pellet, assicurando un ambiente confortevole in ogni stagione.

Mostra tutto

Nelle vicinanze

Trasporto pubblico Trasporto pubblico
Botricello
Botricello
720 m
Supermercati Supermercati
Crai Extra
490 m
Eurospar
1,9 Km
MD
2,1 Km
Negozi Negozi
Negozi
1,3 Km
Prodotti Di Calabria
1,8 Km
Bar Bar
Aiello
250 m
Bar
1,6 Km
Ristoranti Ristoranti
Ristoranti
1,3 Km
Mostra tutto

Caratteristiche

Rif.:
61102440
Piano:
1 di 2 (Piano medio)
Balconi:
1
Camere da letto:
3
Arredamento:
Completo
Condizionamento:
Autonomo
Mostra tutto
Prezzo Prezzo
€ 78.000
Rata mutuo Rata mutuo
€ 368 / mese
Spese annue Spese annue
€ 0
Proponi il tuo prezzoProponi il tuo prezzo

Classe Energetica

E
E
E
E
E
E
E
E
E
EP invernale del fabbricato:
EP estiva del fabbricato:
Anno di costruzione:
1980
Riscaldamento:
Autonomo
Tipo impianto:
A stufa
Tipo alimentazione:
Altro

Ti interessa visionare l'immobile?

Fissa un appuntamento  Fissa un appuntamento

Richiedi informazioni

Clicca su Leggi per aprire l'informativa
* Questi campi sono obbligatori

Calcola il tuo mutuo

Semplice e senza impegno
Anticipo

( % )
Mutuo

( % )

pochi semplici passi

inserisci i tuoi dati
Questionario completato
Grazie per aver richiesto un appuntamento senza impegno con un nostro Consulente del Credito e Assicurativo.

Hai inserito correttamente tutti i dati necessari e a breve riceverai una e-mail con un link da convalidare per inviare i tuoi dati.
Affiliato
Immobiliare Botricello D.I.
Via Venezia, 1 88070 Botricello (CZ)

Il nostro staff


  • Domenico Puccio
    Affiliato

  • Francesca Federico
    Coordinatrice

  • Francesco Greco
    Responsabile

  • Santino Stirparo
    Collaboratore
Via Venezia, 1 88070 Botricello (CZ)
Zona: Simeri Mare - Sellia Marina - Cropani - Botricello - Steccato
Mostra su mappa
Orari: da lunedì a sabato dalle ore 09.00 alle ore 19.00 ; domenica e festivi su appuntamento.
Affiliato
Immobiliare Botricello D.I.
Via Venezia, 1 88070 Botricello (CZ)

2025 Tecnocasa Franchising S.p.A. - P. IVA 08365160152 - Via Monte Bianco 60/A 20089 Rozzano (MI). Ogni agenzia ha un proprio titolare ed è autonoma. Privacy policy | Policy utilizzo | Cookie policy